stupid electrical problems
Thread Starter
Joined: Jun 2007
Posts: 584
Likes: 1
From: san antonio TX
stupid electrical problems
wired up a new wide band 02. while doing so i re-did the wires for my stereo to make them more organized. i did not use the black/red wire for ground i used a brand new ground but still managed to burn out my interior illumination.
my tail lights and head lights work. my clock works. just my dash lights and cig lighter light does not work any more.
fuse is fine.
any advice?
if you tell me how to fix it please use details
my tail lights and head lights work. my clock works. just my dash lights and cig lighter light does not work any more.
fuse is fine.
any advice?
if you tell me how to fix it please use details
Thread Starter
Joined: Jun 2007
Posts: 584
Likes: 1
From: san antonio TX
oh and i read the FAQ. i know about the switch but i dont really feel like getting a new one if i did burn it out simply by messing with wires in the dash.
what can i do. please dont tell me to read FAQ. cuz it doesnt tell me how to bypass the problem.
what can i do. please dont tell me to read FAQ. cuz it doesnt tell me how to bypass the problem.
Test for power could have melted a line . More important than bypassing or band aiding the problem , is to fix the problem . Have you tried moving the brand new ground to a different area?
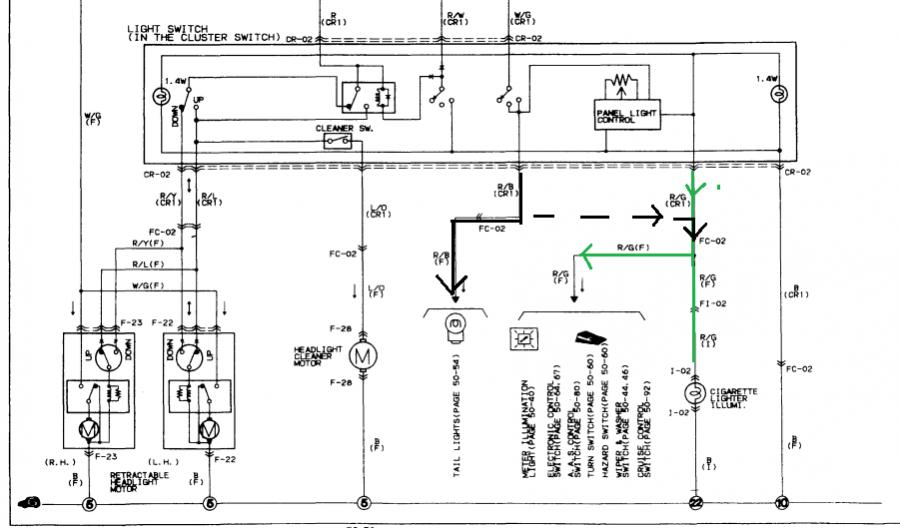
Don't read the FAQ! But check for voltage on the Red/Green wire that comes from the headlight switch harness. This can be done at that particular harness or you could locate connector FC-02 which is located down by the driver's side kick panel. There you will find a couple of blue connectors of similar size but FC-02 "is not" the one which has a number of blue coded wires so the other connector is FC-02. Find this connector which is the joining of two plugs and both of them contain the R/G wire. With the headlight switch **** turned to the illuminate the dash lights position check for voltage on this R/G wire for it should exist. If it is not present then an additional wire could be used to help illuminate the troubled lights but you will lose the ability to change the brightness of the dash lights.
Thread Starter
Joined: Jun 2007
Posts: 584
Likes: 1
From: san antonio TX


omg dont you think i would have tried that? i didnt use that wire but some how after messing around in the same area something happened causing the problem. i didnt switch any wires around i kept everything the same i just cleaned up my amature wire work from back 4 years ago. everything worked while i had the stereo out of the dash. but when i put everything back inside the dash , the lights stopped working.a bandaid is not what it will be called. its an alternate resolution to the problem at hand.
Don't read the FAQ! But check for voltage on the Red/Green wire that comes from the headlight switch harness. This can be done at that particular harness or you could locate connector FC-02 which is located down by the driver's side kick panel. There you will find a couple of blue connectors of similar size but FC-02 "is not" the one which has a number of blue coded wires so the other connector is FC-02. Find this connector which is the joining of two plugs and both of them contain the R/G wire. With the headlight switch **** turned to the illuminate the dash lights position check for voltage on this R/G wire for it should exist. If it is not present then an additional wire could be used to help illuminate the troubled lights but you will lose the ability to change the brightness of the dash lights.
basically i need exact directions of how to tapp into the dash illumination. i already know what i will source it with. i just need to know which wire needs to get the power
im good with wireing and making things clean and doing things right, but i just need to know which wire to give power to.
Icemark is deceased, literally, as in dead as a door nail so he's not up to barking or any other animal impersonations. If you look at the harness connected to the headlight switch you will find the Red/Green wire which I speak of and this was posted in the first line of my original post.
Do you have a multimeter? What satch is saying is that the harness that connects to your headlight switch has the wires he was talking about. Regardless, with a multimeter you can probe the connector on the harness going to the switch with the red lead on the multimeter, and put the black lead to a good ground point (unpainted metal). Set the multimeter to DC 20v
Trending Topics
Thread Starter
Joined: Jun 2007
Posts: 584
Likes: 1
From: san antonio TX
Icemark is deceased, literally, as in dead as a door nail so he's not up to barking or any other animal impersonations. If you look at the harness connected to the headlight switch you will find the Red/Green wire which I speak of and this was posted in the first line of my original post.
Won't be happening, the man isn't with us anymore... (although we still have HAILERS, he has the answers to anything electrical)
Do you have a multimeter? What satch is saying is that the harness that connects to your headlight switch has the wires he was talking about. Regardless, with a multimeter you can probe the connector on the harness going to the switch with the red lead on the multimeter, and put the black lead to a good ground point (unpainted metal). Set the multimeter to DC 20v
Do you have a multimeter? What satch is saying is that the harness that connects to your headlight switch has the wires he was talking about. Regardless, with a multimeter you can probe the connector on the harness going to the switch with the red lead on the multimeter, and put the black lead to a good ground point (unpainted metal). Set the multimeter to DC 20v
yeah i was poking around with the multi meter last night and restored power to my gauge illumination.
so basically poke around untill i find a good 12v signal. and tie the 2 wires together. tapping in the red/green into any good 12v source that is switched. the red green wire supplies the power to the dash illumination and is safe to give a new power source located on the same harness .
easy enough. if i understand correctly.
i hate reading. i'm a show me kind of person. i love wiring but this whole harness thing is a bit uneasy to me. once i had to re-wire a broken window switch in a rush because of rain. and i wound up frying the switch further, but i did get the window up. so i know how the wrong wires can cause damage to other components.
yes the R/G wire comes out of the headlight switch for the interior illumination circuit. What's most likely happened is that the headlight switch has been damaged such that no voltage is coming out on the R/G wire when the headlight switch is operated. I've had that happen before when I made a similar mistake in wiring behind the radio. If you cut the R/G wire and hook the dash harness side to the R/B wire then you will have dash illumination when the parking light circuit is active. Check this out:

The black wire I have here is the red wire with black stripe, and the green wire is the red wire with green stripe. If you cut the red wire with green stripe, one side will go to the headlight switch and one side will go to the dash harness. The side that goes to the dash harness provides the power for the interior illumination circuit. That's the side that could be spliced in to the R/B wire or some other power source. This is pretty much a "cheap bastard" fix in lieu of replacing the headlight switch but it should work, just don't run too much current on this circuit.
Now one thing you need to do is MAKE SURE YOU HAVE FIXED THE SHORT that caused the problem in the first place. The red/green wire should NOT have continuity to ground. Set your meter to resistance. Take one probe and connect it to the dash harness side of the R/G wire. Put the other probe to a good chassis ground and see if there is resistance. There should be infinite resistance (open circuit). If there is resistance, you still have a short somewhere and hooking up power to the circuit will damage something else.

The black wire I have here is the red wire with black stripe, and the green wire is the red wire with green stripe. If you cut the red wire with green stripe, one side will go to the headlight switch and one side will go to the dash harness. The side that goes to the dash harness provides the power for the interior illumination circuit. That's the side that could be spliced in to the R/B wire or some other power source. This is pretty much a "cheap bastard" fix in lieu of replacing the headlight switch but it should work, just don't run too much current on this circuit.
Now one thing you need to do is MAKE SURE YOU HAVE FIXED THE SHORT that caused the problem in the first place. The red/green wire should NOT have continuity to ground. Set your meter to resistance. Take one probe and connect it to the dash harness side of the R/G wire. Put the other probe to a good chassis ground and see if there is resistance. There should be infinite resistance (open circuit). If there is resistance, you still have a short somewhere and hooking up power to the circuit will damage something else.
Thread Starter
Joined: Jun 2007
Posts: 584
Likes: 1
From: san antonio TX
yes the R/G wire comes out of the headlight switch for the interior illumination circuit. What's most likely happened is that the headlight switch has been damaged such that no voltage is coming out on the R/G wire when the headlight switch is operated. I've had that happen before when I made a similar mistake in wiring behind the radio. If you cut the R/G wire and hook the dash harness side to the R/B wire then you will have dash illumination when the parking light circuit is active. Check this out:

The black wire I have here is the red wire with black stripe, and the green wire is the red wire with green stripe. If you cut the red wire with green stripe, one side will go to the headlight switch and one side will go to the dash harness. The side that goes to the dash harness provides the power for the interior illumination circuit. That's the side that could be spliced in to the R/B wire or some other power source. This is pretty much a "cheap bastard" fix in lieu of replacing the headlight switch but it should work, just don't run too much current on this circuit.
Now one thing you need to do is MAKE SURE YOU HAVE FIXED THE SHORT that caused the problem in the first place. The red/green wire should NOT have continuity to ground. Set your meter to resistance. Take one probe and connect it to the dash harness side of the R/G wire. Put the other probe to a good chassis ground and see if there is resistance. There should be infinite resistance (open circuit). If there is resistance, you still have a short somewhere and hooking up power to the circuit will damage something else.

The black wire I have here is the red wire with black stripe, and the green wire is the red wire with green stripe. If you cut the red wire with green stripe, one side will go to the headlight switch and one side will go to the dash harness. The side that goes to the dash harness provides the power for the interior illumination circuit. That's the side that could be spliced in to the R/B wire or some other power source. This is pretty much a "cheap bastard" fix in lieu of replacing the headlight switch but it should work, just don't run too much current on this circuit.
Now one thing you need to do is MAKE SURE YOU HAVE FIXED THE SHORT that caused the problem in the first place. The red/green wire should NOT have continuity to ground. Set your meter to resistance. Take one probe and connect it to the dash harness side of the R/G wire. Put the other probe to a good chassis ground and see if there is resistance. There should be infinite resistance (open circuit). If there is resistance, you still have a short somewhere and hooking up power to the circuit will damage something else.
search function doesnt really work all that great on this forum especially with how many posts simple phrases pull up. like "grounded illum wire" can really pull up much that would help me. so its best to ask again and get the answer best suited for my situation... thanks for the concern
so, when it rains it poors. i was out in the garage. it was 100 degrees today and humid as hell. while wiring up a resolution to powering my led gauges i accidental had the blue with white stripe accessory wire to close to the metal steering column, i turned on the key but bumped the wire and the little metal spade touched the metal and zap, i killed the accessory curcuit too..........
some one did the wiring before i got the car so the blue and white wire was connected to a red wire so i thought it was a red accessory... im looking into this right now. but had to edit this post first
the fuse is fine.
WHAT did i fry since i grounded the damn accessory wire?
now i have 2 problems to fix..... and a tore apart car... i hate the heat. i'm bad *** at wireing but this heat leaves me with out a clear mind to think of what i am fricken doing...
Last edited by fc3schick87; Aug 5, 2010 at 09:27 PM.
Thread Starter
Joined: Jun 2007
Posts: 584
Likes: 1
From: san antonio TX
lmao accessory wire issue fixed. i swore i checked the audio fuse but i checkd it again and it was popped. sware i looked at it before .... so now i am back on track
Thread
Thread Starter
Forum
Replies
Last Post
The1Sun
1st Generation Specific (1979-1985)
7
Sep 18, 2015 07:13 PM
The1Sun
New Member RX-7 Technical
5
Sep 15, 2015 04:45 PM
msilvia
3rd Generation Specific (1993-2002)
15
Sep 11, 2015 12:13 PM







