electrical probs that keeps engines from starting
if there's no fuel going through the injectors and none going back to the tank and none leaking anywhere, where's it going? i know what you're talking about with the manifold vacuum actuating the fpr, but why am i not smelling fuel out the exhaust?
Originally Posted by rx7ryan
if there's no fuel going through the injectors and none going back to the tank and none leaking anywhere, where's it going? i know what you're talking about with the manifold vacuum actuating the fpr, but why am i not smelling fuel out the exhaust?
Have you tried new spark plugs??? I know that if they are wet sometimes they just arc out and don't fire.
what's that got to do with anything? it's been sitting since the car broke down close to 3 months ago. the gas was from a gas station though.
Last edited by Ronin Rotary; Jan 27, 2006 at 03:35 PM.
Joined: Sep 2005
Posts: 25,581
Likes: 136
From: Smiths Falls.(near Ottawa!.Mapquest IT!)
the reason I Posted the WHINE bit was there is a difference in the sound of a flooded engine and the sound of an engine Not getting fuel..obviously you don't know that ..tried to give you advice ..didn't expect you being rude in return..good luck..
misterstyx69, i wasn't being rude. I was seriously asking you. I didn't know. calm down, it's cool.
roninrotary, the spark plugs were sparking when i checked them out of the car so they're not bad. and the car isn't starting at all so it's not the gas. thanks though.
roninrotary, the spark plugs were sparking when i checked them out of the car so they're not bad. and the car isn't starting at all so it's not the gas. thanks though.
why was the fuel pump changed???
Your symptoms are not consistent. Either the plugs are getting wet with fuel or are not.
Sorta like you are either getting fuel back to the tank, when jumpered or not. It sounds like or not for that one, but if that is the case then you should not be getting wet spark plugs.
You need to check and see if you really are getting fuel (which is one of the things Mark suggested on the first page). Did you change the fuel filter??? or maybe it is clogged and only letting a minimal amount of fuel through and your battery is low... (remember the battery must be fully charged to get a good spark).
Your symptoms are not consistent. Either the plugs are getting wet with fuel or are not.
Sorta like you are either getting fuel back to the tank, when jumpered or not. It sounds like or not for that one, but if that is the case then you should not be getting wet spark plugs.
You need to check and see if you really are getting fuel (which is one of the things Mark suggested on the first page). Did you change the fuel filter??? or maybe it is clogged and only letting a minimal amount of fuel through and your battery is low... (remember the battery must be fully charged to get a good spark).
the fuel pump was changed because i'm going to need an upgraded one soon anyway. someone mentioned that it could possibly be the problem so i said what the hell and ordered one. the plugs had a black liquid on them when i pulled them out. i don't know what it was from but it was there from when i last did something to it which was about a week and a half before.
i'm not getting fuel back to the tank when it's jumpered because i clearly checked that and posted it last night. in order to check to see if there was fuel being delivered to the rotors, i smelled the exhaust and i smelled no fuel. i don't know how accurate that is, but that's how i did it.
the fuel filter was changed the day before all of this happened and it was installed the right way...i've checked it atleast 3 times since then. i also checked if it was clogged and it wasn't.
i'm using my friend's battery jumpered to mine everytime i try to start it. that means that i'm getting enough spark because the truck that the other battery is from is running.
basically, i'm posting the same thing over and over so i'm just going to have it towed to a rotary specialist cause i'm tired of dealing with it and i need my car to run.
i'm not getting fuel back to the tank when it's jumpered because i clearly checked that and posted it last night. in order to check to see if there was fuel being delivered to the rotors, i smelled the exhaust and i smelled no fuel. i don't know how accurate that is, but that's how i did it.
the fuel filter was changed the day before all of this happened and it was installed the right way...i've checked it atleast 3 times since then. i also checked if it was clogged and it wasn't.
i'm using my friend's battery jumpered to mine everytime i try to start it. that means that i'm getting enough spark because the truck that the other battery is from is running.
basically, i'm posting the same thing over and over so i'm just going to have it towed to a rotary specialist cause i'm tired of dealing with it and i need my car to run.
well then I would confirm that you are getting fuel. Disconnect the fuel filter and jumper the fuel plug and see if it is pushing fuel out.
Then if it is, hook it all back up and the next thing is to see if there is fuel coming out of the secondary rail (jspec motors have the rails reversed and sometimes people mix them up for example of a problem- don't know if this is a Jspec)
If it is getting fuel through the rails then you need to check the return and see if that is clogged or something.
Then if it is, hook it all back up and the next thing is to see if there is fuel coming out of the secondary rail (jspec motors have the rails reversed and sometimes people mix them up for example of a problem- don't know if this is a Jspec)
If it is getting fuel through the rails then you need to check the return and see if that is clogged or something.
Originally Posted by n/a-luvr
louisiana eh? are the plugs wet cause the car was underwater? sorry - couldn't resist
I'm not convinced yet he's getting fuel through the injectors. What I would do is pop the FPR off the rail and check for fuel there; It should **** out like a race horse. I would think there wouldn't be a return to the tank until the engine was running - doesn't manifold vacuum actuate the FPR open?
I have a n/a so I'm not too strong on the intricate workings of a turbo efi system. Could a dead boost sensor or knock sensor do this? ~rich
I'm not convinced yet he's getting fuel through the injectors. What I would do is pop the FPR off the rail and check for fuel there; It should **** out like a race horse. I would think there wouldn't be a return to the tank until the engine was running - doesn't manifold vacuum actuate the FPR open?
I have a n/a so I'm not too strong on the intricate workings of a turbo efi system. Could a dead boost sensor or knock sensor do this? ~rich
The engine has not started. There is no vacuum getting to the fpr. Even if it did get there, the fpr would then regulate Lower than 37-39psi so that whatever was over that Lower figure would get routed back to the fuel tank.
In other words there should be a continuous routing of fuel from the tank, to the fuel rails then back to the fuel tank as long as the key is to ON and the fuel pump check connector is jumpered.
It is a continuous loop even with the engine running at full speed.
Anyway, he said the pump puts out because it sprays fuel out at the fuel pump discharge line. If he connects that line up and turns the pump on he said he does not get fuel to come out the return line at the fuel pump (line off I think), so there is a blockage or the fuel lines are on opposite (feed and return lines crossed) or the fuel filter is in backwards (I think that can happen, I remember a arrow being on then in the direction of the flow). I'm not sure if a fuel filter is put in backwards whether or not that checks the fuel flow. It's a unknown to me.
Last edited by HAILERS; Jan 27, 2006 at 05:44 PM.
fuel filter is on right. ok now there are two hard lines coming out from under the intercooler. one closer to the firewall and one closer to the front of the car. they are right next to each other. this is an Aspec engine. which one is feed and which one is return. i'll go check it right after i get a reply.
Originally Posted by rx7ryan
exactly...my car's getting towed tomorrow morning
You still have not said what compression is...
well, I hate to say it again cause I sound like a broken record but when I got my transplant car the motor would crank but not start. With weak exhaust pulses, I figured the engine was too gone and flooding.
But when I put my new motor in it still wouldn't start! Eventually I troubleshot it down to a bad RF Capacitor. It's a little black square with one pigtail mounted under the trailing(?) coil and it's job is to kill the RF noise the pulsing fuel injectors make. Well mine was grounding out but ONLY when the injectors started to pulse! So with the key on but not cranking, I was getting 12vdc+ to the injectors. HOWEVER when cranking, VDC dropped to 0vdc; no power to the fuel injectors.
Solution? Unplug it's connector and crank. You can run without it but it may cause noise in your radio. ~rich
But when I put my new motor in it still wouldn't start! Eventually I troubleshot it down to a bad RF Capacitor. It's a little black square with one pigtail mounted under the trailing(?) coil and it's job is to kill the RF noise the pulsing fuel injectors make. Well mine was grounding out but ONLY when the injectors started to pulse! So with the key on but not cranking, I was getting 12vdc+ to the injectors. HOWEVER when cranking, VDC dropped to 0vdc; no power to the fuel injectors.
Solution? Unplug it's connector and crank. You can run without it but it may cause noise in your radio. ~rich
Originally Posted by n/a-luvr
well, I hate to say it again cause I sound like a broken record but when I got my transplant car the motor would crank but not start. With weak exhaust pulses, I figured the engine was too gone and flooding.
But when I put my new motor in it still wouldn't start! Eventually I troubleshot it down to a bad RF Capacitor. It's a little black square with one pigtail mounted under the trailing(?) coil and it's job is to kill the RF noise the pulsing fuel injectors make. Well mine was grounding out but ONLY when the injectors started to pulse! So with the key on but not cranking, I was getting 12vdc+ to the injectors. HOWEVER when cranking, VDC dropped to 0vdc; no power to the fuel injectors.
Solution? Unplug it's connector and crank. You can run without it but it may cause noise in your radio. ~rich
But when I put my new motor in it still wouldn't start! Eventually I troubleshot it down to a bad RF Capacitor. It's a little black square with one pigtail mounted under the trailing(?) coil and it's job is to kill the RF noise the pulsing fuel injectors make. Well mine was grounding out but ONLY when the injectors started to pulse! So with the key on but not cranking, I was getting 12vdc+ to the injectors. HOWEVER when cranking, VDC dropped to 0vdc; no power to the fuel injectors.
Solution? Unplug it's connector and crank. You can run without it but it may cause noise in your radio. ~rich
That condensor you described has absolutly nothing to do with the fuel injectors, other than it ties into the 12 volt ignition circuit.
And the fuel injectors are powered by the ignition circuit... the ECU switches ground to them, so if the condensor was hooked up to a grounding trigger like the fuel injectors, the ECU could not even switch the injectors on to fire.
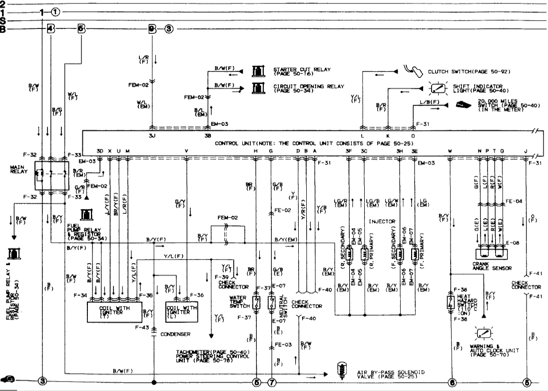
That post shows that you do not understand how the fuel injectors even work. I suggest you do not post what you do not know. Here is the FI circuit and coils for your own information... you can see yourself that there is no condensor on the trigger side of the fuel injectors circuit and that your test could not really happen with the results you posted. If it did, you would have nothing working. No fuel, no spark/coils, and a blown fuse.
Toss in that a condensor is supposed to ground on one side... that is how it works.
Last edited by Icemark; Jan 28, 2006 at 01:14 AM.
Originally Posted by Icemark
Uh... that condensor you describe is for the noise on the ignition power circuit... (not to be confused with spark). It reduces the spikes when injectors or coils fire. Not to reduce radio noise.
That condensor you described has absolutly nothing to do with the fuel injectors, other than it ties into the 12 volt ignition circuit.
And the fuel injectors are powered by the ignition circuit... the ECU switches ground to them, so if the condensor was hooked up to a grounding trigger like the fuel injectors, the ECU could not even switch the injectors on to fire.
That post shows that you do not understand how the fuel injectors even work. I suggest you do not post what you do not know. Here is the FI circuit and coils for your own information... you can see yourself that there is no condensor on the trigger side of the fuel injectors circuit and that your test could not really happen with the results you posted. If it did, you would have nothing working. No fuel, no spark/coils, and a blown fuse.
Toss in that a condensor is supposed to ground on one side... that is how it works.
That condensor you described has absolutly nothing to do with the fuel injectors, other than it ties into the 12 volt ignition circuit.
And the fuel injectors are powered by the ignition circuit... the ECU switches ground to them, so if the condensor was hooked up to a grounding trigger like the fuel injectors, the ECU could not even switch the injectors on to fire.
That post shows that you do not understand how the fuel injectors even work. I suggest you do not post what you do not know. Here is the FI circuit and coils for your own information... you can see yourself that there is no condensor on the trigger side of the fuel injectors circuit and that your test could not really happen with the results you posted. If it did, you would have nothing working. No fuel, no spark/coils, and a blown fuse.
Toss in that a condensor is supposed to ground on one side... that is how it works.
Firstly, RFI suppression is what that Cap does, it's part name is RADIO INTERFERENCE SUPPRESSOR / CAPACITOR (I don't exactly remember) It's the spikes that create an A.C. circuit out of the DC that cause RF noise; the Cap acts as a filter reducing those spikes.
Second, the injectors are GROUND triggered by the ECU with a constant 12vdc+ applied (notice where F-45 is in relation to injector power?)
Third, sometimes when caps blow they bleed to ground. Pay attention to the location of F-45 relative to the ignition circuit and fuel circuit? If it's bad and leaking to ground it allows power to the injector circuit but kills power to the fuel injector circuit.
Fourth, then how do you explain the fact that it was swapping THAT PART THAT FIXED MY RIDE? Regardless of whether you understand the theory behind what I say, discoing that part fixed my problem.
Basic electronics bud - I know you're a mod but really, shouldn't know this stuff? Especially if you're gonna tell me I don't know what I'm talking about or instruct others on how to fix their rides. Now I'm wondering how many other times you've been wrong.... ~rich
p.s. . QED
Last edited by n/a-luvr; Jan 28, 2006 at 09:39 AM.
Originally Posted by n/a-luvr
F-43 bub, right there on the diagram. I would say it is YOU who doesn't know what's going on.
Firstly, RFI suppression is what that Cap does, it's part name is RADIO INTERFERENCE SUPPRESSOR / CAPACITOR (I don't exactly remember) It's the spikes that create an A.C. circuit out of the DC that cause RF noise; the Cap acts as a filter reducing those spikes.
Second, the injectors are GROUND triggered by the ECU with a constant 12vdc+ applied (notice where F-45 is in relation to injector power?)
Third, sometimes when caps blow they bleed to ground. Pay attention to the location of F-45 relative to the ignition circuit and fuel circuit? If it's bad and leaking to ground it allows power to the injector circuit but kills power to the fuel injector circuit.
Fourth, then how do you explain the fact that it was swapping THAT PART THAT FIXED MY RIDE? Regardless of whether you understand the theory behind what I say, discoing that part fixed my problem.
Basic electronics bud - I know you're a mod but really, shouldn't know this stuff? Especially if you're gonna tell me I don't know what I'm talking about or instruct others on how to fix their rides. Now I'm wondering how many other times you've been wrong.... ~rich
p.s. . QED
Firstly, RFI suppression is what that Cap does, it's part name is RADIO INTERFERENCE SUPPRESSOR / CAPACITOR (I don't exactly remember) It's the spikes that create an A.C. circuit out of the DC that cause RF noise; the Cap acts as a filter reducing those spikes.
Second, the injectors are GROUND triggered by the ECU with a constant 12vdc+ applied (notice where F-45 is in relation to injector power?)
Third, sometimes when caps blow they bleed to ground. Pay attention to the location of F-45 relative to the ignition circuit and fuel circuit? If it's bad and leaking to ground it allows power to the injector circuit but kills power to the fuel injector circuit.
Fourth, then how do you explain the fact that it was swapping THAT PART THAT FIXED MY RIDE? Regardless of whether you understand the theory behind what I say, discoing that part fixed my problem.
Basic electronics bud - I know you're a mod but really, shouldn't know this stuff? Especially if you're gonna tell me I don't know what I'm talking about or instruct others on how to fix their rides. Now I'm wondering how many other times you've been wrong.... ~rich
p.s. . QED
Well mine was grounding out but ONLY when the injectors started to pulse! So with the key on but not cranking, I was getting 12vdc+ to the injectors. HOWEVER when cranking, VDC dropped to 0vdc; no power to the fuel injectors.
In addition, that if the cap/condensor had failed you would also have no spark. Something that the thread originator has actually tested for. He has spark. So your whole post was useless and out of place and clearly barking up the wrong tree (again).
Of course if the condensor failed- shorting closed to ground (as it appears you are now suggesting) it would short the ignition circuit to ground, blowing the fuse (or bleeding 10+ amps through it to ground
. If it was simply for RF and not spike (as you suggest), then it could be removed at any point, and your only worries would be radio noise (instead of momentary low voltage to the injectors and coils). Again... failing to disable the system if it was just for RF noise on the radio. Perhaps you mean the RF reduction for the ECU (but again was not clear in posting).Perhaps again you need to post more clearly.
And since you are cluless on a moderators responsibilites and think that it is a moderator job to be always right... for your info, a moderators job is to prevent stupied little ***** from crapping all over the board and to act as a policeman for flaming. Some thing that despite warnings in threads and in PMs; again you are treading dangerously close too. No other responsibilites.
Originally Posted by n/a-luvr
Basic electronics bud - I know you're a mod but really, shouldn't know this stuff? Especially if you're gonna tell me I don't know what I'm talking about or instruct others on how to fix their rides. Now I'm wondering how many other times you've been wrong.... ~rich
p.s. . QED
p.s. . QED
So this guy can flame me and accuse me for not knowing what I'm talking 'bout when he's the guy who doesn't know his stuff?! Doesn't seem fair to me - kinda like your tank running over the defenseless guy. Why don't you quote his attacks on me before you quote my rebuttals to his attacks...
Regardless, help yourself to his spin on electrical theory. ~rich
Regardless, help yourself to his spin on electrical theory. ~rich
Originally Posted by n/a-luvr
So this guy can flame me and accuse me for not knowing what I'm talking 'bout when he's the guy who doesn't know his stuff?! Doesn't seem fair to me - kinda like your tank running over the defenseless guy. Why don't you quote his attacks on me before you quote my rebuttals to his attacks...
Regardless, help yourself to his spin on electrical theory. ~rich
Regardless, help yourself to his spin on electrical theory. ~rich
And that tank was supposed to be you rolling over mark for no good reason, you seem to be the angry guy driving it.
And I missed where he flamed you. I just see you flaming him in a couple of threads now. You know in Aaron's thread at the top of this section that it says you will be banned for flaming or attacking a moderator or administrator
Last edited by Ronin Rotary; Jan 29, 2006 at 12:07 AM.
I have a similar problem as this guy... But I'm NOT getting spark. Can someone please tell me where to check if I am getting NO SPARK? I have replaced the coil with a known good coil from a running car and I still see no spark. I also am not getting any juice to the coil.
Thanks in advance
Thanks in advance



